Не упусти свой шанс! Последние акции от застройщиков  ▼

Продается 5-комнатная квартира, Минская ул., 2Вк3

269 588 000 Р

Минская ул.2Вк3

Дата публикации: 27 марта 2024

Дата обновления: 27 октября 2025

Телефон: 
Показать телефон

+7 (495) 104-56-15

Агентство:  ООО Метриум

Название: ЖК "Снегири Эко"

От застройщика: 0 квартир в продаже

Этаж: 4 / 22

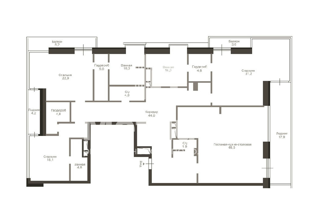
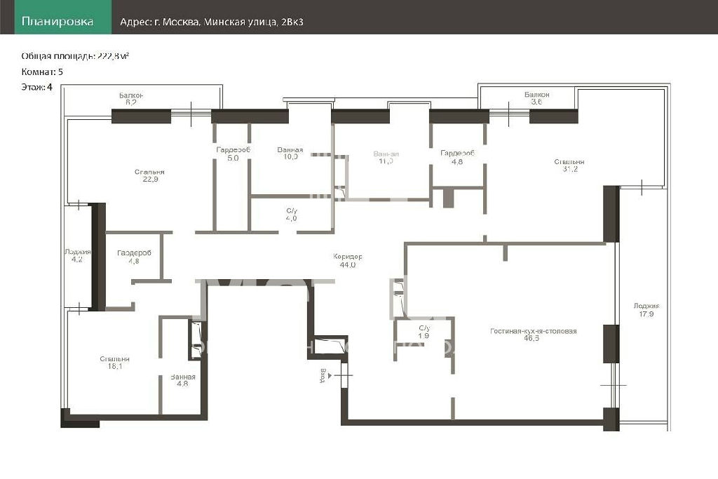
Общая: 222,8 м2

Жилая: не указано

Кухня: не указано

Комнаты: не указано

Балкон/лоджия: не указано

Лифт: не указано

Окна: не указано

Санузел: четыре санузла

Мусоропровод: не указано

Состояние квартиры: без отделки

Тип дома: монолитно-кирпичный

Год постройки: 2018

Территория: огороженная

Парковка: не указано

Статус сделки: продажа

Сделка: прямая продажа

Собственность: не указано

Основание права собственности: не указано

Описание

ID 23445 Предлагается прекрасная квартира площадью 240,6 кв. м. в клубном доме у озера ЖК Снегири Эко, окруженном частным парком. Корпус 6.
Квартира имеет свободную планировку, позволяющую создать жилое пространство на любой вкус. Метраж квартиры предполагает просторную кухню - гостиную, 4 спальни, гардеробную, 4 санузла, лоджии и балконы.
Окна ориентированы на 3 стороны.
В наличии машиноместо в подземном паркинге и кладовое помещение.
Закрытая охраняемая территория комплекса, подземный паркинг. Абсолютное ощущение жизни за городом в районе Кутузовского проспекта, рядом с Парком Победы и природным заказником "Долина реки Сетунь".

Квартира на карте

ПанорамыКарта
Спецпредложения
Добавить объявление